Gyömrő Nefelejcs utca, 1 room, 50 m2, 260 000 Ft/month
Gyömrő
Flat properties: Shower, Shutters
Details
Renovated family house in Gyömrő can be moved in immediately FOR RENT!
In a quiet, peaceful area of Gyömrő near Budapest, a renovated house awaits adult tenants who want to move in for a minimum of one year. The property can be moved in immediately, equipped with shutters and mosquito nets, basically unfurnished, but the furnishings can be discussed on request.
The parameters of the larger house closer to the street can be found in the advertisement. The owner does not live in any of the houses. On request (after agreeing on the conditions), the smaller house can also be rented to it!
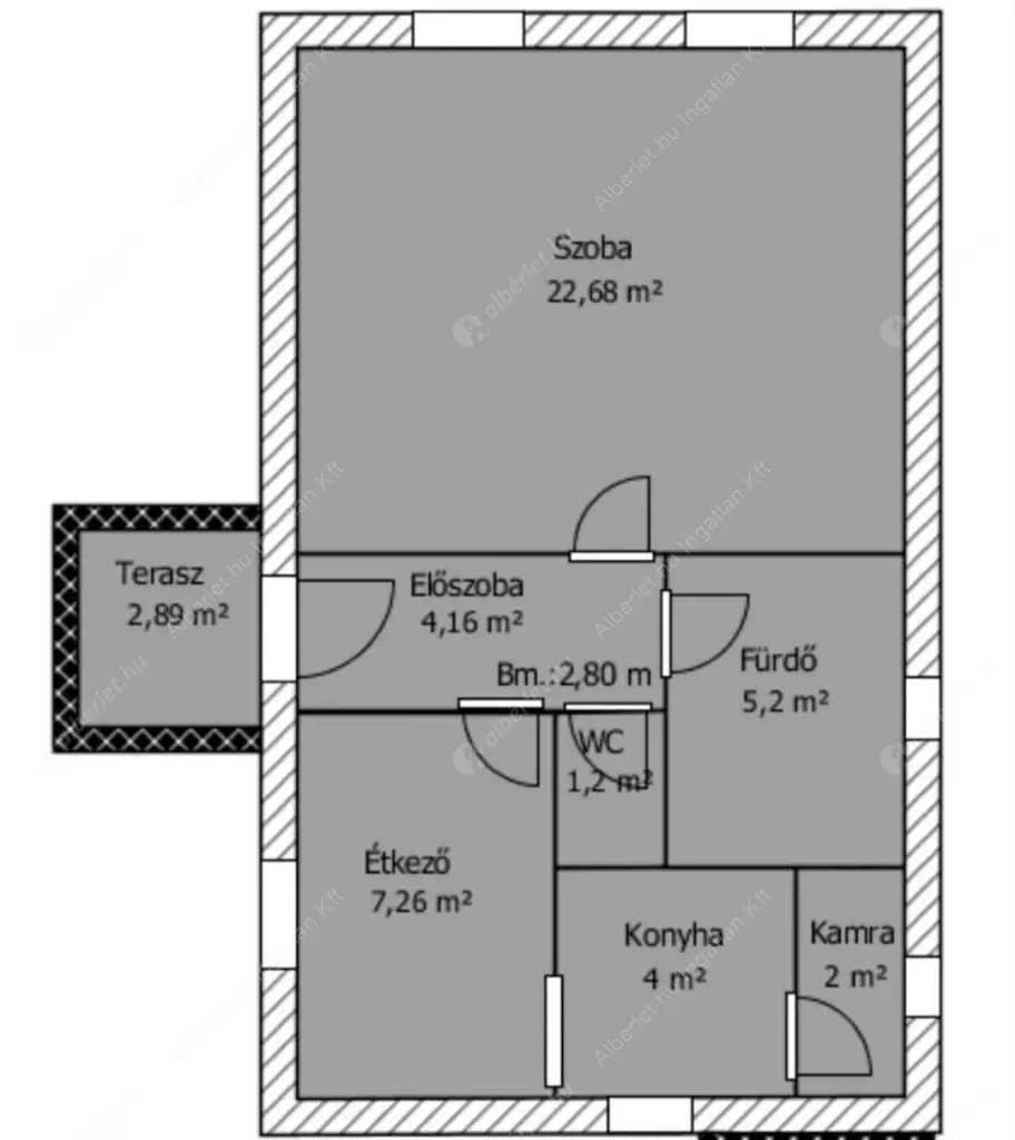
The arrangement of the larger one:
• 1 spacious room
• Kitchen
• Dining room
• Pantry
• Bathroom with shower
• Separate toilet
Heating / hot water: gas boiler / electric boiler
Energy Certificate of the House: JJ
Who is it ideal for?
For tenants who lead a quiet lifestyle, love the courtyard, and are demanding of themselves and their environment.
Minimum rental period: 1 year
Pets are not allowed, smoking is not allowed in the house, only in the yard.