Budapest, XIII. district Újpesti rakpart, 3 room, 90 m2, 600 000 Ft/month
Budapest, XIII. district
Details
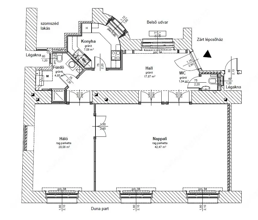
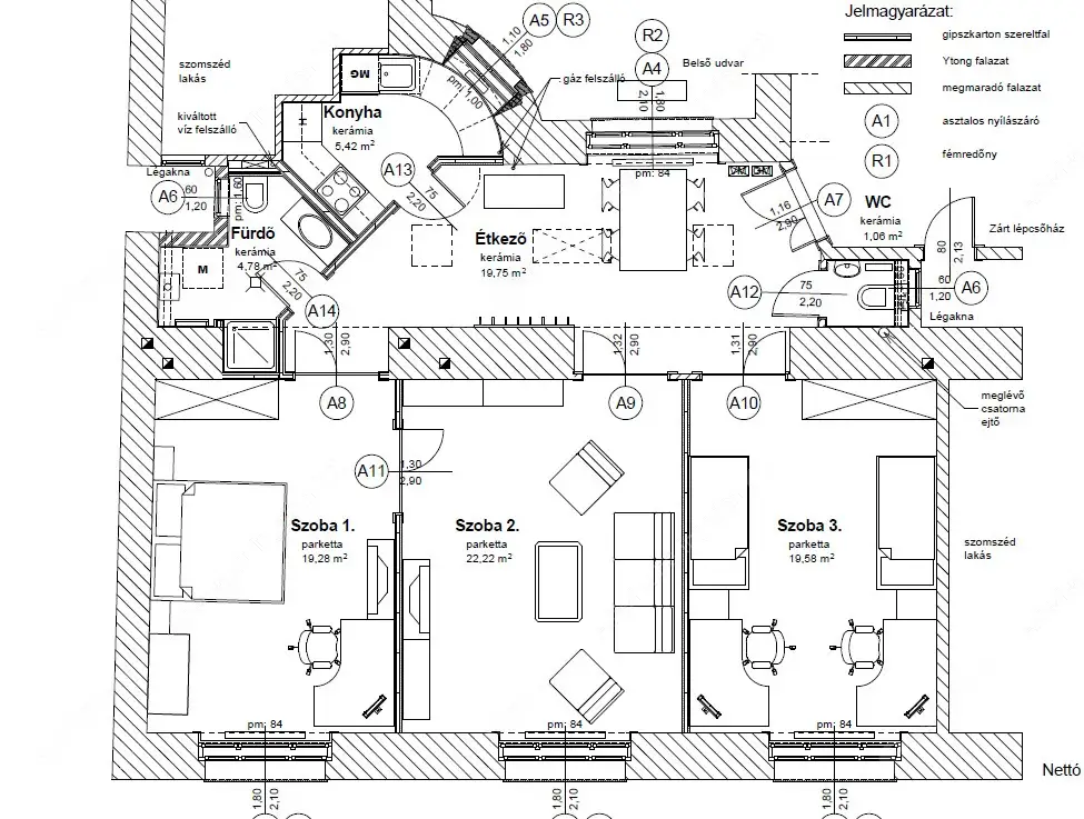
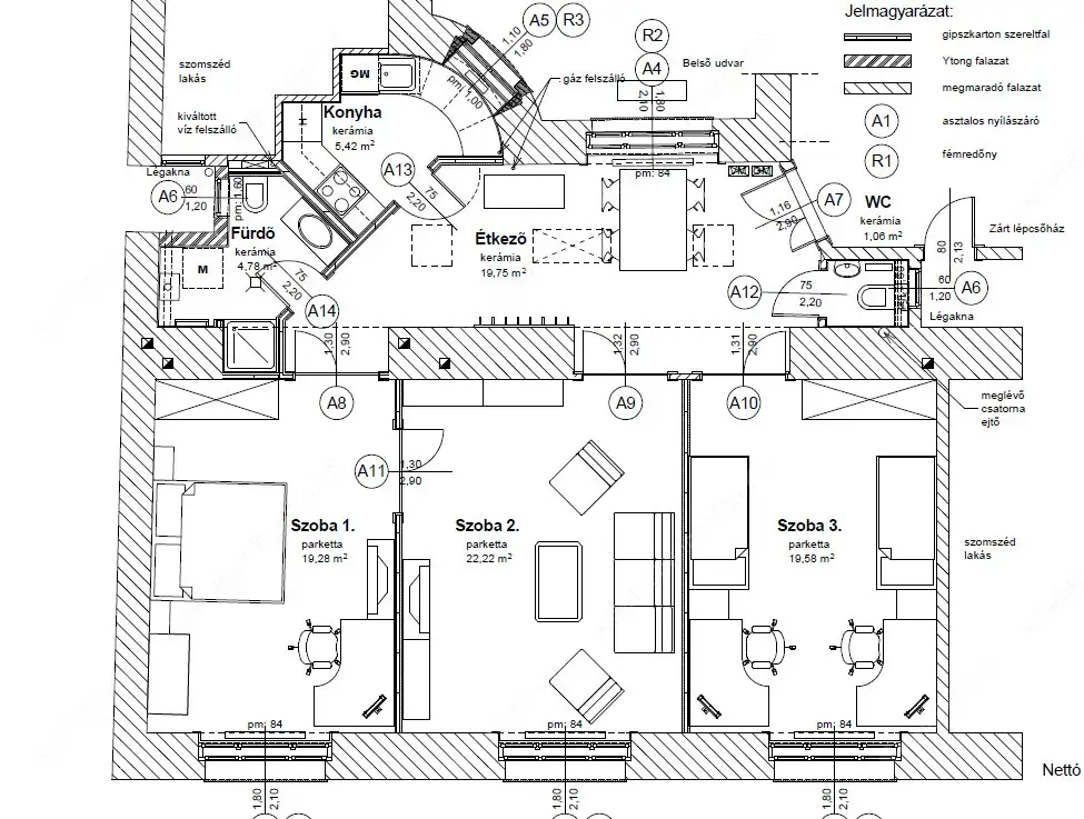
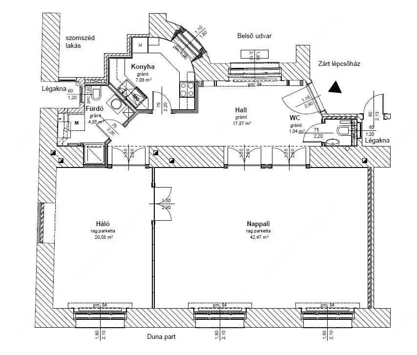
For rent in District XIII, on the Újpest embankment, with a PANORAMIC VIEW OF THE DANUBE,
1st floor, 90 m2, 3 SEPARATE ENTRANCES, bourgeois apartment, for a demanding Tenant.
It is suitable for both offices and surgeries, due to its favorable infrastructure.
The rent of the apartment is GIVEN UNFURNISHED. The large room can be divided with a plasterboard wall as needed, so it will have 3 rooms. It can be picked up with a 2-month deposit and 1 month's rent.
EXCELLENT LOCATION, PANORAMIC apartment.
House with elevator, in good condition.
Soundproof windows and motorized light shutters.
Air-conditioned.
Heating gas boiler and cooling-heating air conditioning
One bathroom with toilet and separate guest toilet
Parking on the street, toll zone
Features of RENTAL:
- minimum 1-year lease
- small animals are not allowed
- smoking is not allowed
- can be moved in after paying a 2-month deposit + 1 month's rent
If you are interested in the advertisement, feel free to contact us!
Our services are free of charge for our search clients!