Budapest, XIII. district Röppentyű utca, 3 room, 73 m2, 413 000 Ft/month
Budapest, XIII. district
Details
In the modern residential park of the 13th district, in the Divinus Lakópark, located on Röppentyű Street, we offer for rent a 1st floor, living room + 2 bedrooms, excellent condition apartment.
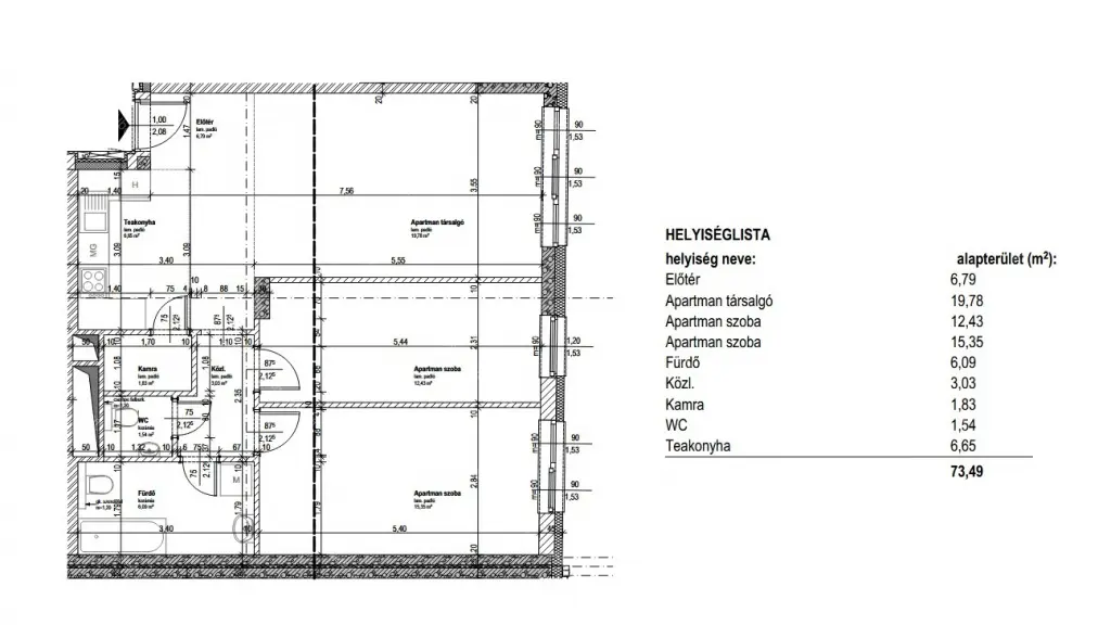
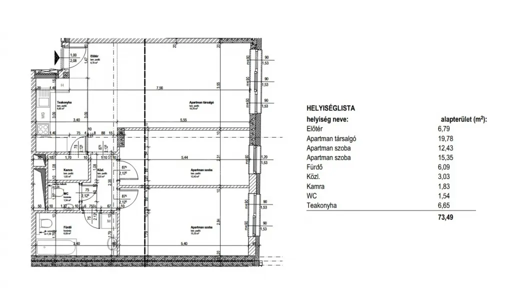
The design of the 73 sqm property is well thought out, its spaces are bright and harmonious, thus providing real peace and comfort in everyday life.
The floor plan is real, it is made of the apartment. However, the photos show a model apartment.
The apartment is furnished and mechanized. The modern kitchen is equipped with an oven, hob, refrigerator, extractor hood and dishwasher, and there is also a washing machine and air conditioning in the apartment.
The property can be rented for a minimum of 1 year, with a lease contract certified by a notary.
The condition for renting is a 2.5 month deposit and presentation of an employer's income certificate.
In case of moving with a pet, a 3 month deposit is required.
In the underground garage of the building, parking spaces of various sizes can be rented for a monthly rent of 30,000 - 40,000 forints, and a lockable storage room of 2-5 square meters is also available, the monthly fee of which is 15,000 - 30,000 forints.
The apartment is in impeccable condition, furnished and fully mechanized, as shown in the pictures.
Divinus Lakópark offers a clean, tidy environment, where the comfort of city life and peaceful living are in perfect balance. The infrastructure of the area is excellent, there are shops, shopping centers, restaurants, cafes nearby, and public transport connections provide quick and convenient access to any point of the city. The green spaces and walkable environment further increase the comfort of those living here, which is why the property is an ideal choice for couples, families, and those who are looking for a sophisticated yet peaceful home.