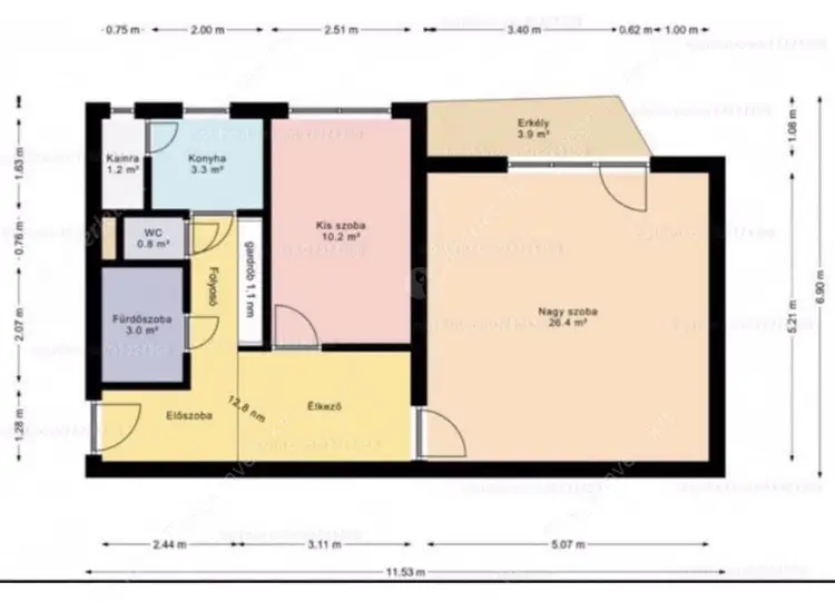
Budapest, XI. district Ménesi út, 2 room, 64 m2, 280 000 Ft/month
280 000 Ft/month
Ménesi út
Budapest, XI. district
Budapest, XI. district
2 room, 64 m2
Building type
Flat
Heating
Boiler
Minimum rental period
At least 1 year
Available from
2025-10-26
Furnishing
Unfurnished, white goods included
Floor
2
Lift
Yes
View
Overlooking the garden
Number of balconies
Not specified
Minimum lease period
At least 1 year
Not specified