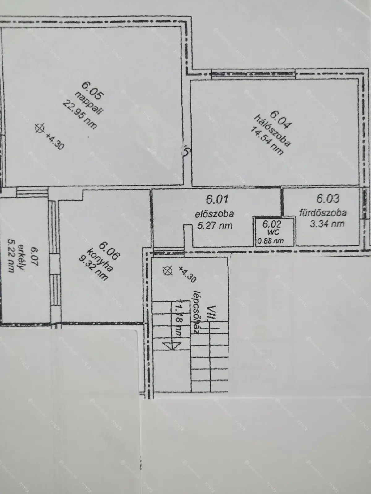
Budapest, XI. district Higany utca, 2 room, 58 m2, 240 000 Ft/month
240 000 Ft/month
Higany utca
Budapest, XI. district
Budapest, XI. district
2 room, 58 m2
Building type
Flat
Neighbourhood
Gazdagrét
Service charge
13 000 Ft/month
Heating
Boiler
Medium-term leases
Yes
Minimum rental period
At least 1 year
Furnishing
Partially furnished
Floor
2
View
Overlooking the garden
Number of balconies
1
Minimum lease period
At least 1 year
Has washing machine
Yes
Not specified
More details
The property's condition
Renovated
Comfort level
Total comfort
Hot water
Custom gas, new boiler / radiator
Kitchen ventilation
Window
Parking options
Parking on the property
Storeys of the building
2
Flat properties: Separate toilet, Storage room, Terrace, Shower, Attic, Security door, Shutters, Mosquito net, Plastic window
Building properties: Inner garden, Electric garage door, Upgraded heating, Covered parking on the property
Amenities & facilities: Air conditioner
Details
Transportation: Metro Line M4 (Green)