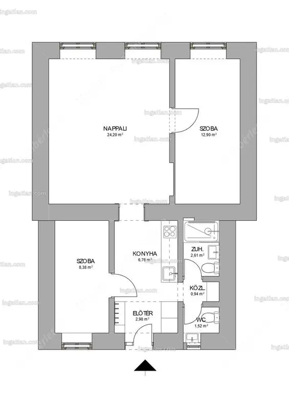
Budapest, VII. district Király utca, 3 room, 61 m2, 390 000 Ft/month
390 000 Ft/month
Király utca
Budapest, VII. district
Budapest, VII. district
3 room, 61 m2
Building type
Flat
Neighbourhood
Belső-Erzsébetváros
Service charge
21 000 Ft/month
Heating
Gas boiler with horizontal flue
Minimum rental period
At least 1 year
Available from
2026-02-01
Furnishing
Unfurnished, white goods included
Rooms with a separate entrance
2
Floor
2
View
Overlooking the street
Number of balconies
Not specified
Minimum lease period
At least 1 year
Pets allowed
Yes
Has washing machine
Yes
Not specified
More details
Type of the building
Classic (before 1950)
The property's condition
Renovated
Comfort level
Total comfort
Hot water
Custom gas, new boiler / radiator
Kitchen ventilation
Range hood and window
Parking options
Controlled or paid parking zone
Storeys of the building
2
Included in common cost
,
Flat properties: Separate toilet, Shower, Security door, Shutters
Amenities & facilities: Air conditioner