Budapest, VI. district Ó utca, 3 room, 98 m2, 799 000 Ft/month
Budapest, VI. district
Flat properties: Separate toilet, High ceiling, Shower, Security door, Shutters
Amenities & facilities: Air conditioner, Alarm system
Details
In the 6th district of Budapest, we offer for rent a RENOVATED, 98 sqm, 3-room, BALCONY apartment on the second floor of a well-kept apartment building with an elevator on Ó Street. The apartment has been completely renovated, with new electricity and water supply.
The property is FURNISHED and MECHANIZED.
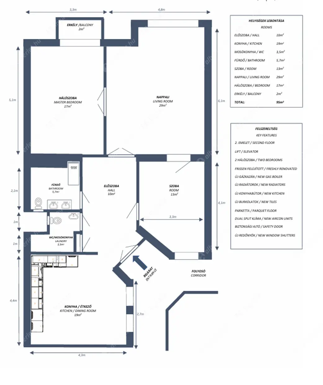
LAYOUT
This is the first apartment after exiting the renovated elevator, so you don't have to go out into the circular hallway.
The apartment can be entered through a double-locked, security door, where the intercom and alarm system control panel are located. The hall opens onto the kitchen-dining room separated by a glass sliding door, the utility/storage cupboard, the guest toilet/laundry room, the bathroom, the living room, and the smaller bedroom. The spacious kitchen-dining room is located next to the hall, which is perfect for larger gatherings.
The kitchen is separated from the rest of the apartment by a glass sliding door and is equipped with modern kitchen furniture and high-quality built-in appliances (no-frost refrigerator, dishwasher, microwave, oven and extractor hood).
The windows overlooking the courtyard make the room bright, and the multiple lighting options also enhance the atmosphere.
The living room and the larger bedroom are southeast-facing, so you can enjoy pleasant sunshine all day long.
Both rooms have beautifully renovated original parquet floors and Wi-Fi-controlled Gree air conditioners.
The smaller bedroom also has parquet floors and overlooks the quiet inner courtyard, so it remains bright all day long.
The insulated windows overlooking the street are equipped with electric shutters.
Two separate toilets, with a washing machine and dryer in a separate laundry room.
The bathroom has a double sink, heated towel rail and a unique glass shower cabin with Hansgrohe shower fittings.
COSTS
Common cost: 35,000 HUF
The H-tariff meter helps reduce heating and cooling electricity costs
Heating: Viessmann hot water storage boiler
LOCATION
Cafes, shops, restaurants, a fitness center, hotels and several parking garages are within 100 meters.
Public transport is excellent, so you can easily get around the city.
OTHER
BALCONY
EQUIPED WITH ALARM
ELECTRIC SHUTTER
There is an elevator!
With a 2-month deposit and the current rent, you can move in IMMEDIATELY, for a minimum of 1 year!
OUR SERVICE IS FREE FOR OUR LOOKING CUSTOMERS!
Transportation: Metro Line M3 (Blue)