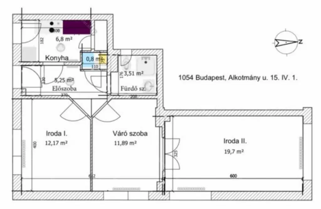
Budapest, V. district Alkotmány utca, 3 room, 60 m2, 320 000 Ft/month
320 000 Ft/month
Alkotmány utca
Budapest, V. district
Budapest, V. district
3 room, 60 m2
Building type
Flat
Neighbourhood
Lipótváros
Deposit
640 000 Ft
Service charge
17 000 Ft/month
Utility costs
15 000 Ft/month
Heating
Gas boiler with horizontal flue
Minimum rental period
At least 1 year
Available from
2026-03-17
Furnishing
Unfurnished
Floor
4
Lift
Yes
View
Panoramic
Number of balconies
Not specified
Minimum lease period
At least 1 year
Not specified
More details
The property's condition
Renovated
Parking options
Controlled or paid parking zone
Storeys of the building
5
Details
In Alkotmány Street, a three-room, unfurnished, fourth-floor apartment in bright and beautiful condition is available for rent.
It is currently operating as an office and can be moved in from 1 January.
Nicely maintained, renovated property.
Common cost 17.400 HUF, water, electricity, gas meter. Circulating heating.
Pets are not allowed.
Two-month deposit, minimum 12-month contract, can be moved in from May.