Budapest, II. district Szabadság utca, 3 room + 1 half room, 110 m2, 545 000 Ft/month
Budapest, II. district
Flat properties: Garden flat, Shower
Amenities & facilities: Air conditioner
Details
Dear Visitors! I will be available again from April 16. In the meantime, I look forward to hearing from you in a message on the website or by e-mail. Thank you for your understanding.
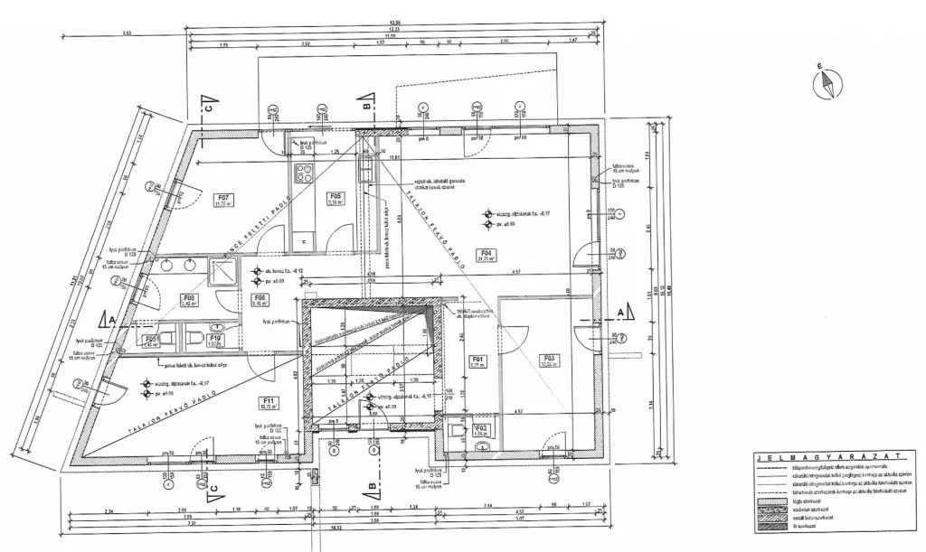
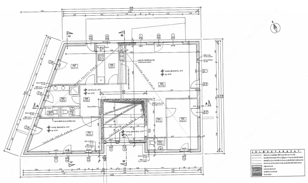
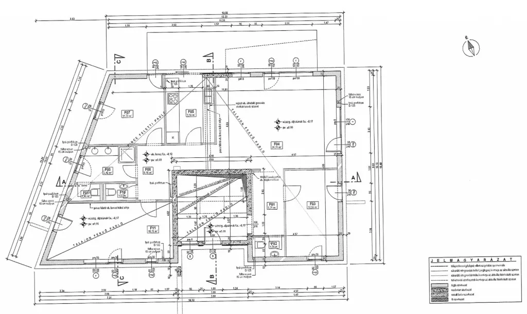
In District II, near the French School and the Gyarmati Dezső Swimming Pool, in Szabadság Street, a ground-floor property in a novel condominium built in 2021 is for rent OFFICE/BUSINESS PREMISES/CLINIC with customer parking with the following main parameters:
- 110 m2
- 3+1 rooms
- 3 toilets
- GARDEN CONNECTION
- TERRACE
- 40 m2 LIVING ROOM WITH AMERICAN KITCHEN
- UNDERFLOOR HEATING
- all rooms are AIR-CONDITIONED
- electric shutters that can be controlled with a remote control
- PARKING: outdoor customer parking lot within the plot
A few changes have been made to the attached floor plan (e.g.: living room with American kitchen)
Rental fee: 1.500 EUR/month + VAT
Payment of rent can be made as follows:
3 months in advance without discount,
6 months in advance with a 3% discount,
12 months in advance with a 6% discount.
The landlord does not prefer the monthly rent payment.
The amount of the deposit is normally the equivalent of 2 months' rent, but in the case of the conversion of the rental property, it can increase to 3 months.
The property can be viewed and CAN BE TAKEN INTO POSSESSION IMMEDIATELY.