Budapest, I. district Logodi utca, 2 room, 86 m2, 350 000 Ft/month
Budapest, I. district
Flat properties: Bath, Separate toilet
Details
LOCATION OF THE PROPERTY:
The property is located in the Buda I. district, in the vicinity of the Deli Railway Station, with excellent transport connections, but still in a quiet street. The location of the building is optimal for several reasons. Szell Kalman Square and Déli Railway Station are both a 2-minute walk away. As a result, the transport is very good and the area is first class. There is a grocery store, a bank branch, a post office, a pharmacy, and restaurants, cafes and a gas station in the area.
BUILDING FEATURES:
Brick building with a flat roof on 4 floors. The house is maintained, in good condition, there is no elevator in the building.
APARTMENT FEATURES:
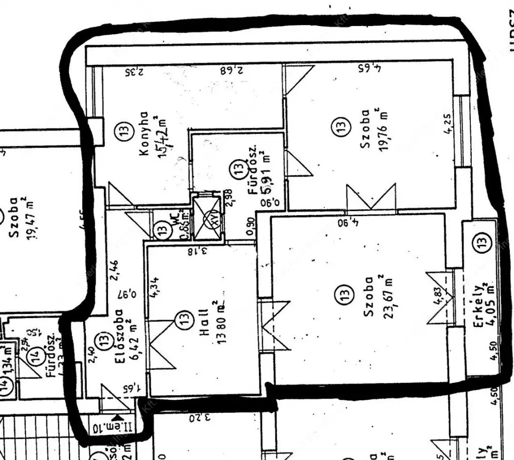
The 90 sqm apartment is located on the second floor. It is in good condition, the wet rooms are covered with tiles and matching tiles, and the rooms are covered with parquet flooring. From the living room there is a wonderful panorama of the Martinovics hill.
The hall, kitchen and bathroom are equipped with built-in furniture. The kitchen is equipped with a gas/electric stove and a fridge. The apartment is also unfurnished.
You can move in immediately.
APARTMENT DIMENSIONS:
Overall size: 90 sqm
Terrace: 4 sqm
- hallway: 6 sqm
- kitchen:15 sqm
- Room: 24 sqm
- Room: 20 sqm
- Hall: 14 sqm
- baths: 6
- Toilet: 1 sqm
- There is also a storage room in the basement.
TECHNICAL EQUIPMENT:
Heating and hot water supply are provided by gas circulators, each with individual meters.
EXPENSES:
In addition to the rent, the overhead of the apartment is payable based on measured data, and the common cost is 21,000 HUF/month, which is also borne by the tenant. Services to be paid separately: cable TV, satellite antenna, telephone and internet.
PARKING:
Paid zone, parking space can be arranged in case of long-term rental.
TERMS AND CONDITIONS OF THE PASS:
The rental period is a fixed period of time, minimum 1 year. Before moving into the apartment, you must pay a deposit, which is the equivalent of two months' rent.