Budakeszi Virágvölgy utca, 4 room + 1 half room, 280 m2, 850 000 Ft/month
Budakeszi
Amenities & facilities: 2 bathrooms
Details
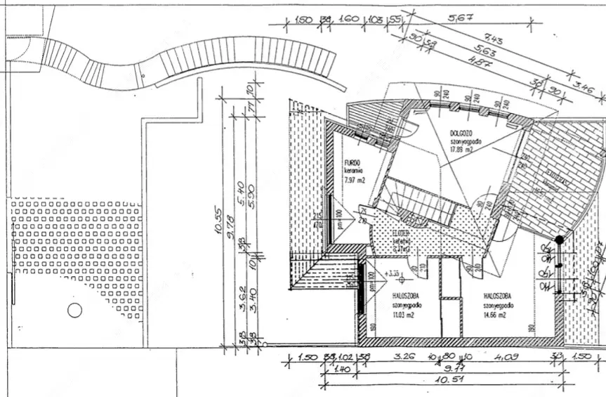
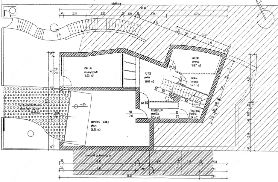
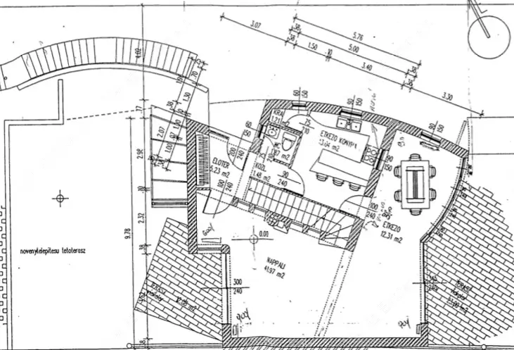
Bordering the forest, Budakeszin is an island of silence and peace for up to 2 generations! In the Virágvölgy district of Budakeszi, an excellent condition, insulated, 280 sq.m., 3-story, triple-comfortable family house with an eternal panorama, terraces, separate garage awaits its new resident. The panoramic apartment house is located in one of the most beautiful and valuable green areas of Budakeszi, in a quiet, calm, captivating environment, right next to the forest, yet close to the city center. The property was built in 2000, the owners paid a lot of attention to the exterior and interior design, as well as continuous maintenance. The house is heated and supplied with hot water by a gas circo boiler, and winter evenings can be made more intimate with the fireplace in the living room. The lowest level of the building functions as a separate living space, which can be accessed with a separate entrance, so it can be a perfect choice for 2 generations, or even for those who want to operate their business from home, but still separate from the family living space. The property has a cozy, completely intimate back garden and a green terrace above the lower level. It includes a garage for 1 car and a surface parking option. - 200 sqm (larger) living space: - 2 floors - living room with American kitchen + dining room - entrance hall - 1 rear garden-connected terrace - 1 green terrace facing the street - 1 separate toilet - 3 rooms - 2 balconies - 1 bathroom + toilet - 60 sqm (smaller) living space: - living room + 1 bedroom - kitchen - bathroom + toilet - study/dining area - infrared sauna - separate garage /street front/ + 1 parking space - 10 cm dryvit thermal insulation The access to the property is good, it is located near the main traffic route of the settlement . By public transport, Budapest can be reached from Széll Kálmán tér in 25-30 minutes with the family bus 22 and the night service 922, as well as fast services with the Kelenföld terminus. Its infrastructural facilities are excellent: a crèche, kindergarten, elementary school and high school are available 10 minutes from the house, and the center of Budakeszi is a few minutes' walk away - where there is a rich selection of shops, post office, pharmacy, GP surgeries, pastry shops, beauty salons, restaurants and banks. Hikers and nature lovers are also preferred: the Vadaspark is a 15-20 minute walk away, the Szépjuhászné children's railway, and Normafa and Jánoshegy are also within an hour's walk.