Budapest, V. district Balaton utca, 2 room, 69 m2, 290 000 Ft/month
Budapest, V. district
Flat properties: Bath, Dishwasher, Storage room, Terrace, Mosquito net, En-suite bathroom
Building properties: Inner garden
Amenities & facilities: Air conditioner
Details
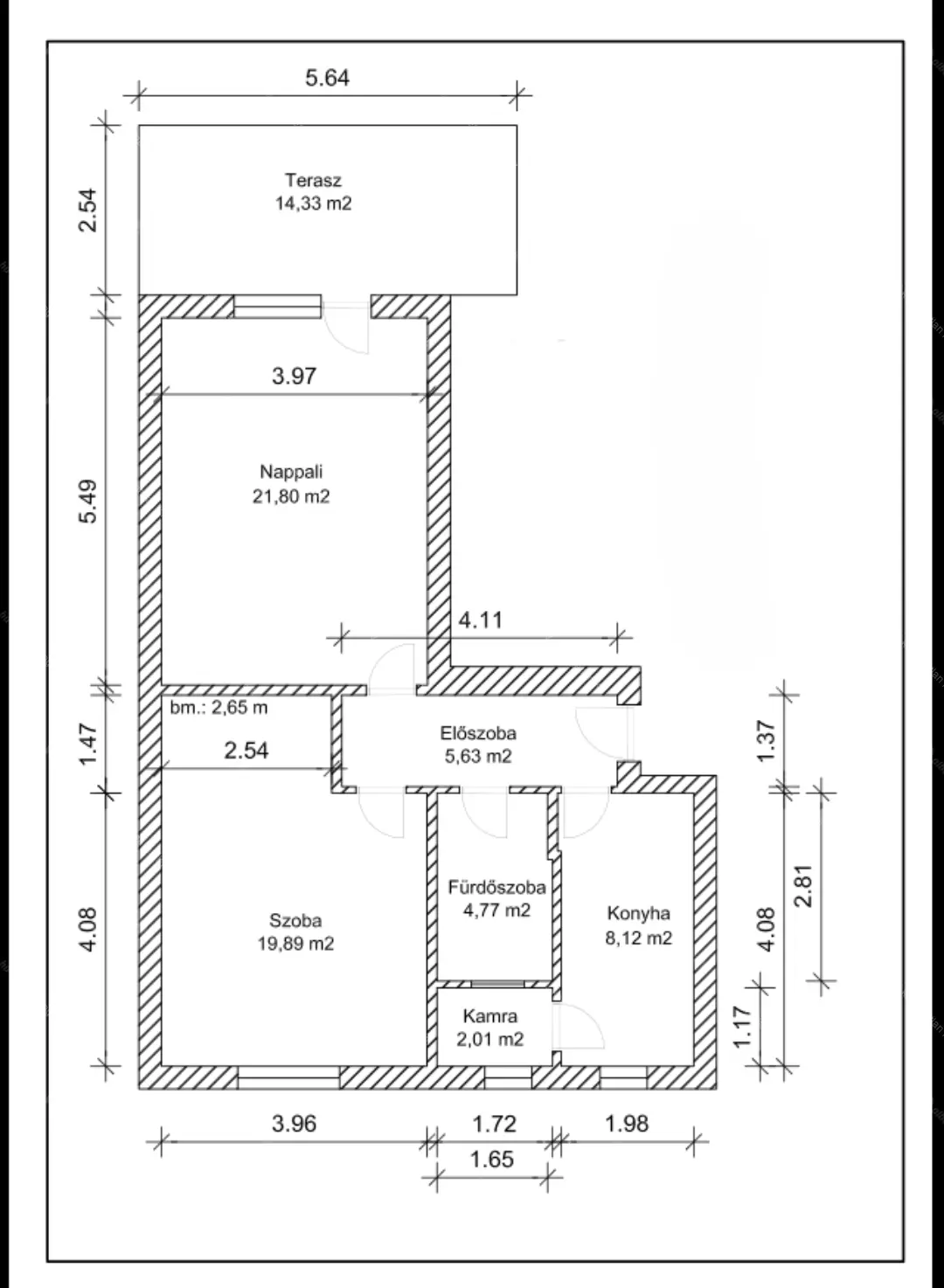
5th district, Balaton street, on the 1st floor of a building with an elevator, an apartment with a floor area of 62 m² + a 14 m² terrace is for rent.
Please also watch the presentation video.
https://youtube.com/shorts/tgEXfHaeSeU?is=UwQkNXkjqq-mdxhp
Unfortunately, pets and children are not allowed.
The property is furnished and equipped, equipped with a dishwasher and air conditioning, and has 2 separate rooms.
The common cost is 32,500-Ft, which includes the central heating fee.
The utilities are billed based on individual measurements.
Nearby, Kossuth Lajos Square, Olympic Park, Margaret Island and the West Railway Station, as well as everything that is needed for a pleasant downtown life, are within easy reach.
You can move in immediately for 2 months' deposit and the first month's rent.
The condition of renting is a move-out declaration made before a notary, the fee of which is paid by the Tenant and the Landlord in a 50-50 ratio.
Feel free to search.
Neighbourhood: Close to the Danube, Jászai Mari Square, Hungarian Parliament Building (Hu: Országház)
Transportation: Tram route 4 and 6, Metro Line M2 (Red)