Budapest, II. district Bimbó út, 4 room, 130 m2, 750 000 Ft/month
Budapest, II. district
Details
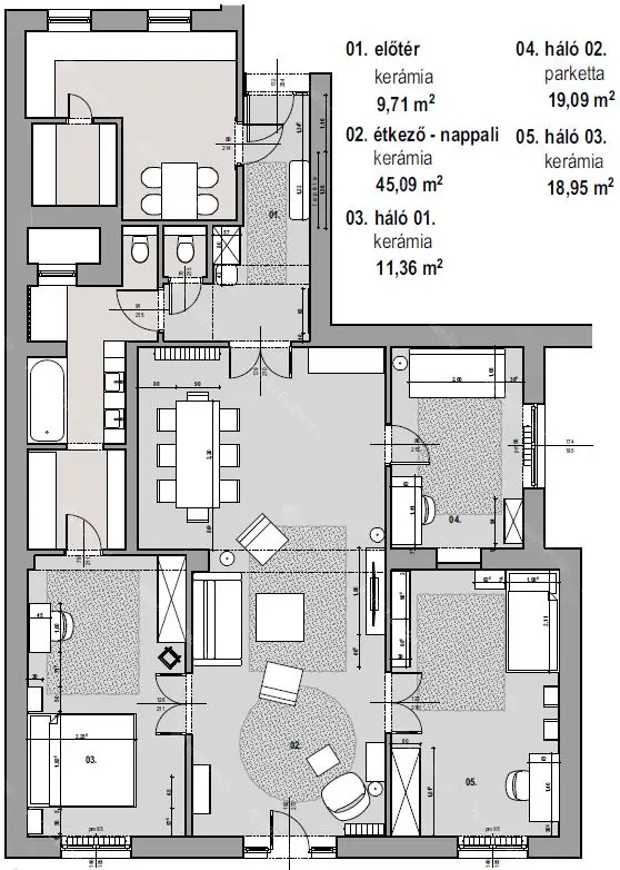
For rent: a spacious 130 sqm apartment on the 5th floor, located at the lower part of Bimbó út, just a short walk from Mechwart Liget and Margit körút, in an excellent and highly convenient location.
The property features an exceptionally bright and expansive living room with a balcony, offering stunning panoramic views of the Buda Hills together with two additional rooms. The apartment has a total of 4 rooms: a large living room plus three bedrooms, with the fourth room facing a quiet inner courtyard.
From the entrance hall, you access a modern, fully equipped kitchen with a dining area and separate pantry. All bedrooms open from the living room, while the master bedroom is also accessible through the walk-in wardrobe and bathroom.
This double-comfort apartment offers a spacious bathroom with double sinks, a bathtub, and a shower cabin, as well as two separate toilets for added convenience. The washing machine is located in the wardrobe area connecting the bathroom and master bedroom.
The apartment is equipped with 4 air conditioning units. The building also features an elevator and electric intercom system.
Bimbó út 1, 3, and 5 form a unified residential complex of nearly 100 apartments, benefiting from efficient property management and financial stability. The staircase and elevator have recently been fully renovated.
A unique advantage of this property is the private, enclosed attic storage space, while a shared bicycle storage room is available in the basement.
A private parking space suitable for one car is also available for rent at 20,000 HUF/month.
The apartment is available for immediate move-in, offered for long-term rental, and is ideal both as a comfortable home or office space.